PATIDAR BANGLOW

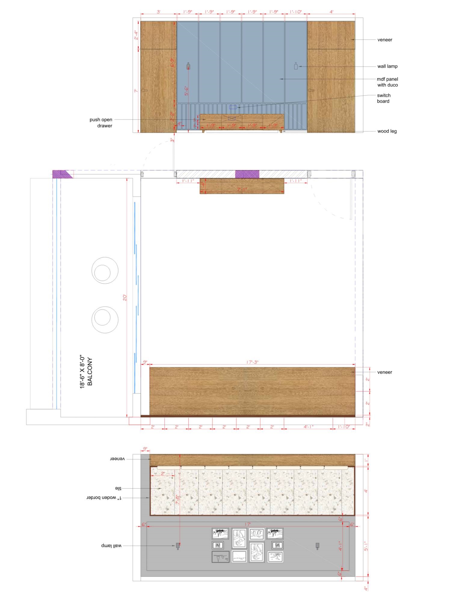
I prefer to present paintings or prints with frames of soft neutral or gold colors, or make use of decorative items such as polished pebbles, miniature figurines and potted plants with small subtle.

Built with Dorik